+34 631 815 903 Виталий
+34 678 80 82 08 Татьяна
+34 930 378 243
casaproinvest@gmail.com
  • Русский
  • Español

Квартира в продаже-Barcelona (Sarrià - Sant Gervasi / La Bonanova)

ID (ref): 
Sarrià
1 050 000 €
Описание: 
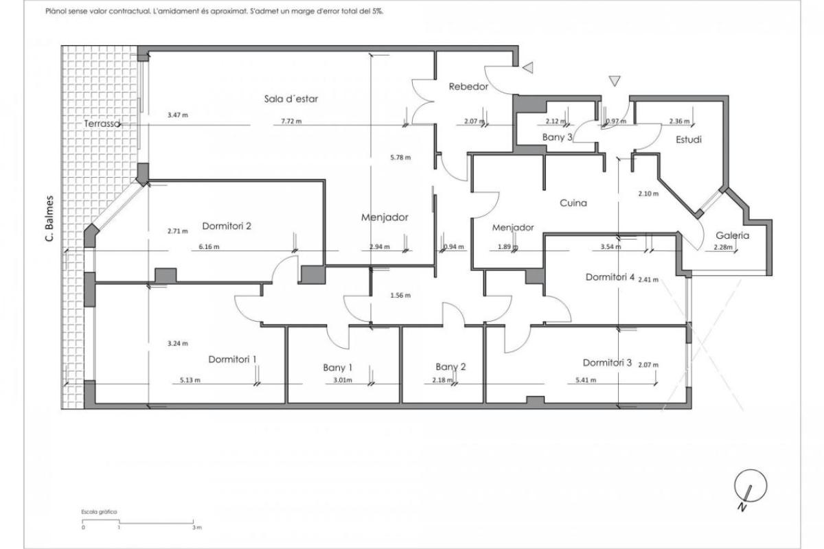
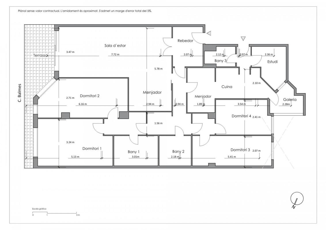
В самом сердце Сан-Жерваси-Бонанова, на улице Бальмес, вы найдете эту квартиру площадью более 150 м², расположенную на верхнем этаже ухоженного здания, сертифицированного ITE (Технической строительной инспекцией). Квартира отличается простором, естественным освещением и большим балконом-террасой. В этом же здании можно приобрести парковочное место. Удобная и функциональная планировка включает четыре спальни и три ванные комнаты, большую гостиную-столовую, отдельную кухню, подсобное помещение и большой балкон-террасу, идеально подходящий для наслаждения видом на город. Высота и расположение потолков обеспечивают исключительное естественное освещение и приятное ощущение простора. Эта недвижимость предлагает городской комфорт и стиль, окруженная магазинами, ресторанами, различными услугами и отличным транспортным сообщением. Внимание, инвесторы: при жилой площади более 150 м² максимальная арендная плата не установлена. Уникальная возможность для тех, кто ищет элегантную, светлую квартиру с идеальной инфраструктурой в самом центре города. Квартира свободна и готова к заселению. Позвоните нам, и мы запланируем визит для осмотра этого прекрасного объекта на рынке недвижимости Барселоны.
Дополнительные характеристики: 
Балкон
Вид на город
Встроенные шкафы
Кондиционер
Лифт
Оборудованная кухня
Отопление
Панорамный вид
Рядом рестораны/кафе
Терраса
Центр города
А вы уже готовы выбрать недвижимость вашей мечты?