+34 631 815 903 Виталий
+34 678 80 82 08 Татьяна
+34 930 378 243
casaproinvest@gmail.com
  • Русский
  • Español

Квартира в продаже -Barcelona (Eixample / Antiga Esquerra Eixample)/Calle d'Aribau

ID (ref): 
ALM_Aribau
540 000 €
Описание: 
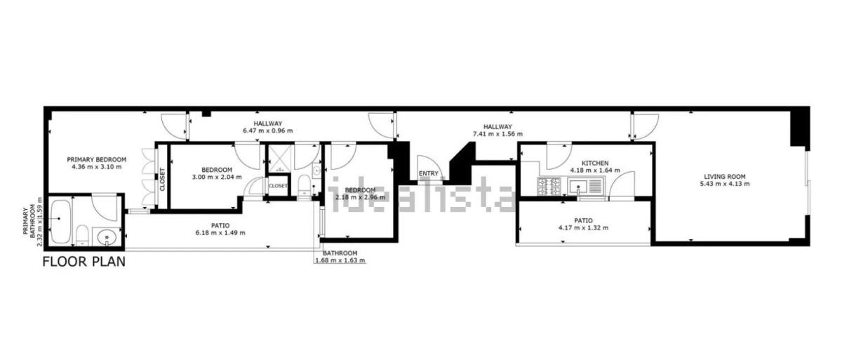
В одном из самых востребованных районов Барселоны мы представляем вам уютную и функциональную квартиру по адресу Арибау, 113, в современном здании, построенном в 2006 году, с лифтом. Квартира отличается продуманной планировкой и высококачественной отделкой в ​​отличном состоянии, что делает ее идеальным вариантом для немедленного заселения: светлая гостиная-столовая с видом на улицу – идеальное место для отдыха или общения с друзьями и семьей. Отдельная, ухоженная и практичная кухня. Три спальни со встроенными шкафами: – Одна спальня с собственной ванной комнатой – Две отдельные спальни с отдельной кроватью, идеально подходящие для домашнего офиса, детской или гостевой комнаты. Две ванные комнаты с душевыми кабинами и современным дизайном. Основные характеристики: паркетные полы, алюминиевые оконные рамы, индивидуальное газовое отопление и кондиционер. И все это в прекрасном месте: всего в нескольких шагах от станции метро Hospital Clínic (L5), железнодорожной станции Provença FGC и развитой автобусной сети. Идеальное сообщение с центром города, проспектом Диагональ и всеми удобствами района Эшампле-Эскерра. Идеальный вариант как для проживания, так и для инвестиций в востребованном районе с большим потенциалом.
Дополнительные характеристики: 
Встроенные шкафы
Газовое отопление
Доступна ипотека
Лифт
Оборудованная кухня
Отопление
Рядом рестораны/кафе
А вы уже готовы выбрать недвижимость вашей мечты?